Syftet med detaljplanen är att möjliggöra en utökning av exploateringen inom ett befintligt verksamhets- och industriområde. Planen syftar även till att säkerställa en hållbar dagvattenhantering samt hantera säkerhetsaspekter kopplade till motorvägen som löper öster om området. Vidare ska detaljplanen skydda biotopsskyddade träd vid planområdets västra gräns.

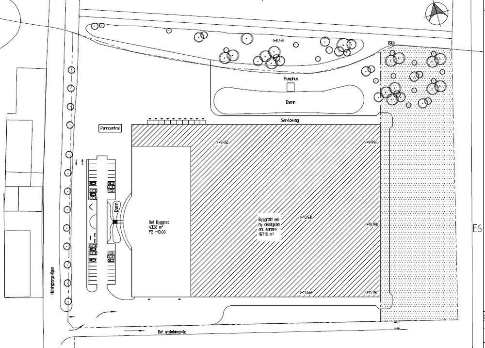
Planområdet läge framgår av översiktskartan till vänster. Planområdet omfattar fastigheten Norra Varalöv 16:17 och angränsas av Norra Varalöv 31:2 i norr, Helsingborgsvägen i väst, E6an i öst och fastigheten Södra Varalöv 18:1 i söder. Planområdets areal är cirka 5 hektar.
Fastigheten Norra Varalöv ägs av exploatören.
Planområdet utgörs idag av en befintlig verksamhet med en byggnad om cirka 4000 kvadratmeter. I den västra delen av området, längs Helsingborgsvägen, finns en trädallé som bidrar till den visuella karaktären och avgränsar området mot vägen. Inom området finns även en dagvattendamm som bidrar till områdets hantering av regn- och smältvatten. Norr om planområdet gränsar det till större logistikverksamheter, medan det i söder om finns mindre verksamheter, bland annat ett orangeri. Motorvägen E6 löper nära området i öster, vilket gör platsen strategiskt belägen med goda kommunikationsmöjligheter.
Vid en exploatering av planområdet är det viktigt att växtlighet med höga värden bevaras, samt att säkerhetsavstånd till omkringliggande vägar bibehålls.

Planförslaget möjliggör en utbyggnad av befintlig verksamhet genom utökad byggrätt i förhållande till gällande detaljplan. För att detaljplanen ska möjliggöra en ändamålsenlig exploatering har även begränsningen på byggnadernas höjd ändrats. I planens västra del, längs med Helsingborgsvägen, finns en trädallé som skyddas.
Detaljplanen medger ny allmän plats i form av naturmark med enskilt huvudmannaskap. Syftet med bestämmelsen är att säkerställa yta för dagvattenhantering samt bevara befintliga naturvärden inom området, särskilt kopplat till dagvattendammen i norr. Trots att marken regleras som allmän plats är den inte tänkt att fungera som ett allmänt tillgängligt rekreationsområde, utan får snarare en teknisk och ekologisk funktion i anslutning till verksamhetsområdet.
Planområdet omfattar enbart kvartersmark med möjlighet att uppföra ny industri. Exploateringsgraden är 50% av fastighetsarean och i norra delen av planområdet avsätts en större yta för hantering av dagvatten.
Genomförandetiden är 5 år från den dag planen vinner laga kraft. Innan genomförandetiden har gått ut får planen inte ändras, ersättas eller upphävas mot berörda fastighetsägares vilja.